GRENELLE
Bureau
GRENELLE
Bureau
Client : Privé
Type : Bureau - Appartement
Superficie : 47 m²
Lieu : Paris XVe
Mission : Rénovation complète - Aménagement intérieur
Statut : livré en 2017
Client : Privé
Type : Bureau - Appartement
Superficie : 47 m²
Lieu : Paris XVe
Mission : Rénovation complète - Aménagement intérieur
Statut : livré en 2017
Grenelle
Bureau
Grenelle
Bureau
Client : Privé
Type : Bureau - Appartement
Superficie : 47 m²
Lieu : Paris XVe
Mission : Rénovation complète - Aménagement intérieur
Statut : livré en 2017
Client : Privé
Type : Bureau - Appartement
Superficie : 47 m²
Lieu : Paris XVe
Mission : Rénovation complète - Aménagement intérieur
Statut : livré en 2017
menu

Monard & Milan
Architectes d'intérieur C.F.A.I - Maîtres d'œuvre
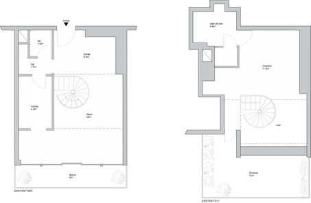
DUPLEX ENTREPRENEURS
Paris
Maîtrise d'ouvrage
Maîtrise d'œuvre
Surface
Année
Programme
Client privé
Architectes Monard & Milan : Conception - Etude
Exécution travaux
BET structure béton
60 m²
2019
Restructuration et rénovation complète d'un appartement en duplex - décloisonnement et redistribution des espaces- agrandissement / reprise structurelle et création d'un plancher en verre - agencement / mobilier sur-mesure




























